De stedelijke fuifzaal situeert zich in het centrum van de stad Geel tegenover het gemeentehuis, en vlak bij woningen aan de overzijde van de straat. Het gebouw vormt een onderdeel van een cluster van publieke gebouwen met culturele functie: cultuurcentrum, bibliotheek, filmtheater, fuifzaal. De openheid van de drie gevels zorgt voor contact tussen foyer en publieke buitenruimte. Zo benadrukt het gebouw zijn publieke functie. De realisatie van de nieuwe feestzaal is een eerste stap in het stadsvernieuwingsproject dat het centrum van de stad Geel grondig zal hertekenen.
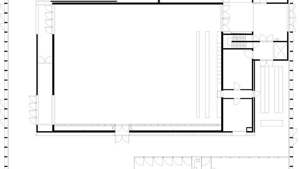
De fuifzaal is opgevat volgens een eenvoudig organisatieprincipe waarbij de zaal midden in het gebouw ligt, omringd door secundaire functies zoals inkom, foyer, toiletten, bergruimtes,…
De toegangsroute vanaf de straat tot in de zaal verloopt via een sas, een foyer met geluidabsorptie, en tenslotte een zeer geluidabsorberende ‘gang’ die uitmondt in de fuifzaal. Hierdoor is de muziek in de zaal buiten niet hoorbaar ook bij intensief komen en gaan van bezoekers. Tegelijk blijft er een directe vluchtweg vanuit de zaal naar buiten.





Om je zo goed mogelijk van dienst te zijn, maken we gebruik van cookies. Hiermee slaan we informatie op of openen we gegevens op je apparaat. Met jouw toestemming kunnen we bijvoorbeeld anonieme statistieken verzamelen over het gebruik van onze site.
Als je liever geen toestemming geeft of je voorkeuren later aanpast, is dat helemaal oké. Houd er dan wel rekening mee dat sommige onderdelen van de site mogelijk minder goed werken.